Design Management & Architecture
Home
About US
CONTACT
Services
What We Do
Examples of overlooked projects
Projects
639 Talowood
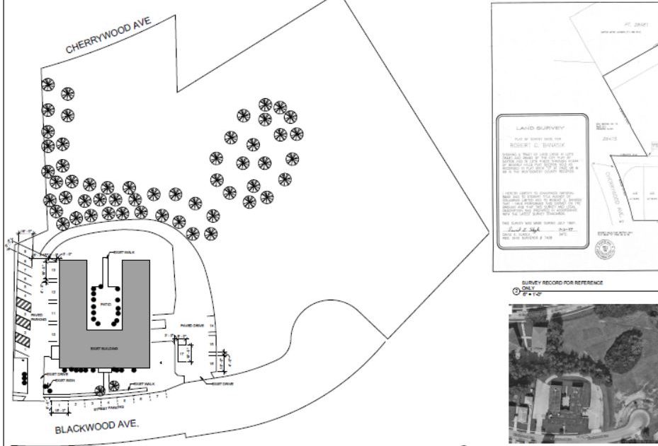
437 Blackwood
427 Merrick
396 Elm
326 Park Drive
55 N. Central Ave.
7333 Manning Rd, Dayton Ohio
341 Jefferson St, Dayton Ohio _ Makers Space
Roof replacement
Search
Search for:
437 Blackwood
Services:
As-builts, design, planning, zoning application & appeal
Share this:
Share on X (Opens in new window)
X
Share on Facebook (Opens in new window)
Facebook
Like
Loading...
Create a website or blog at WordPress.com
Subscribe
Subscribed
brandonarch.com
Sign me up
Already have a WordPress.com account?
Log in now.
brandonarch.com
Subscribe
Subscribed
Sign up
Log in
Copy shortlink
Report this content
View post in Reader
Manage subscriptions
Collapse this bar
Loading Comments...
Write a Comment...
Email (Required)
Name (Required)
Website
%d